Roll-Thru Refrigerator Specification Sheet

Project Quantity Item #
Model Specified: CSI Section 11400
TRAULSEN
4401 BLUE MOUND RD. FT. WORTH, TX 76106
PHONE 1 (800) 825-8220 FAX-MKTG. 1 (817) 624-4302
Website: www.traulsen.com
SECTION
1-13
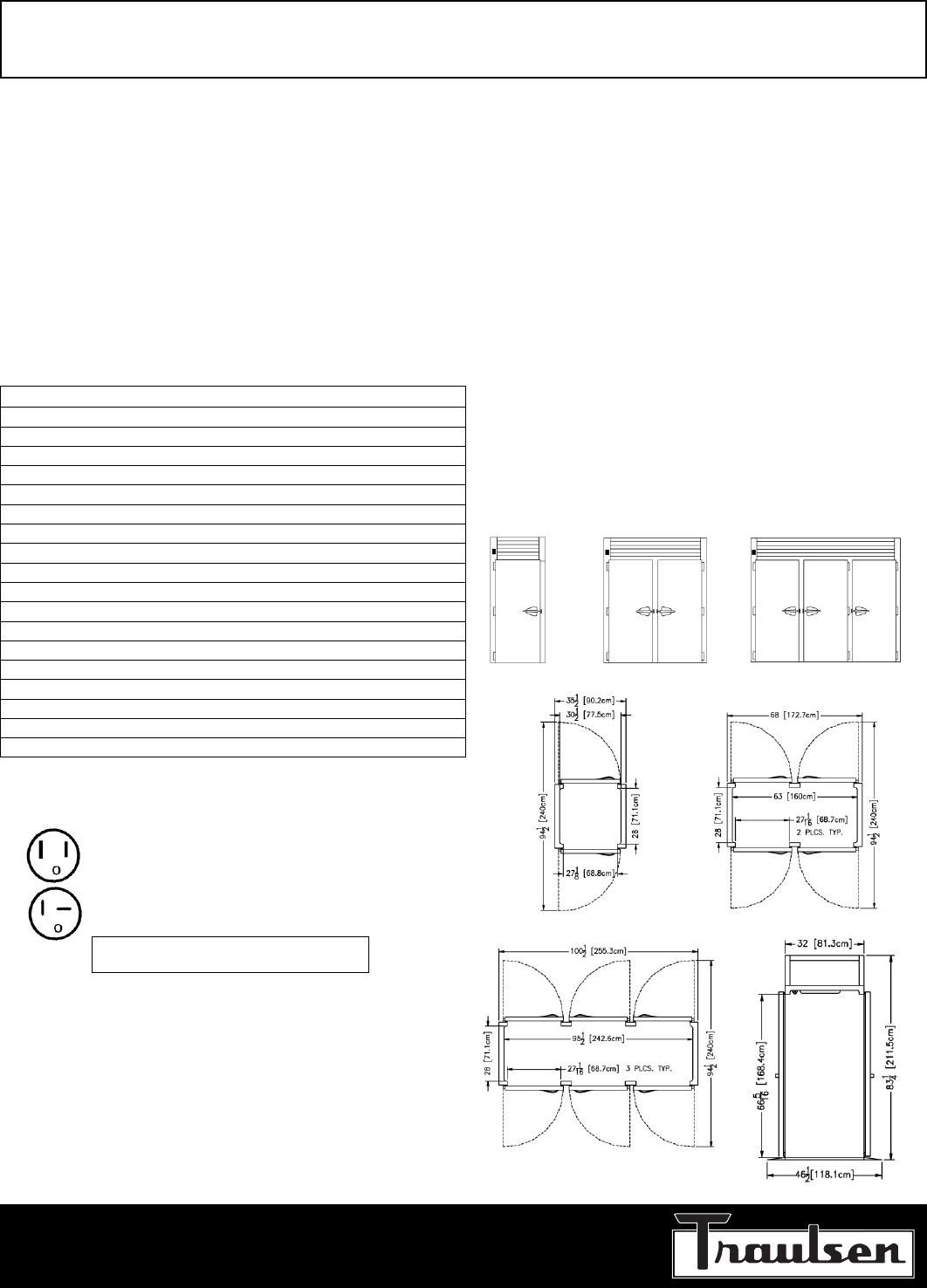
DIMENSIONAL DATA R/ARI132LPUT R/ARI232LPUT R/ARI332LPUT
Net capacity cu. ft. 38.8 (1099 cu l) 80.2 (2272 cu l) 117.5 (3329 cu l)
Length - overall in. 35
1
⁄
2
(90.2 cm) 68 (172.7 cm) 100
1
⁄
2
(255.3 cm)
Depth - overall in. 39
1
⁄
8
(99.4 cm) 39
1
⁄
8
(99.4 cm) 39
1
⁄
8
(99.4 cm)
Depth - over body in. 32 (81.3 cm) 32 (81.3 cm) 32 (81.3 cm)
Depth - doors open 90° in. 94
1
⁄
2
(240.0 cm) 94
1
⁄
2
(240.0 cm) 94
1
⁄
2
(240.0 cm)
Clear door width in. 27
1
⁄
8
(68.8 cm) 27
1
⁄
8
(68.8 cm) 27
1
⁄
8
(68.8 cm)
Clear door height in. 66
5
⁄
16
(168.4 cm) 66
5
⁄
16
(168.4 cm) 66
5
⁄
16
(168.4 cm)
Height - overall in. 83
1
⁄
4
(211.5 cm) 83
1
⁄
4
(211.5 cm) 83
1
⁄
4
(211.5 cm)
RRI Net Wt. lbs. 490 (222 kg) 775 (352 kg) 1050 (476 kg)
ARI Net Wt. lbs. 415 (188 kg) 670 (304 kg) 915 (415 kg)
Rack Capacity - 66" High 1 2 3
ELECTRICAL DATA
Voltage 115/60/1 115/60/1 115/60/1
Feed wires with Ground 3 3 3
Full load amperes 11.6 13.4 15.2
REFRIGERATION DATA
Refrigerant R-134a R-134a R-134a
BTU/HR H.P.
1
2220 (
1
⁄
3
HP) 4200 (
1
⁄
2
HP) 5120 (
3
⁄
4
HP)
NOTE: When ordering please specify: Voltage, Hinging, Door Size, Options and any
additional warranties.
Continued product development may necessitate specification changes without notice.
Part No. TR35767 (revised 1/07)
Construction, Hardware and Insulation
Cabinet exterior front, one piece sides, louver assembly and doors are constructed
of 20 gauge stainless steel with #4 finish. Cabinet interior and door liners are
constructed of stainless steel (anodized aluminum in the A-Series). The exterior cabinet
top and bottom are constructed of heavy gauge aluminized steel. The interior floor is
constructed of stainless steel and insulated with
3
⁄4" of resilient cork. Readily
attachable stainless steel ramps are provided to facilitate loading/unloading.
Doors are equipped with a heavy-duty, extruded wiper gasket for sealing to bottom
ramp, removable plug cylinder locks and guaranteed for life cam-lift, gravity action,
self-closing metal, glide hinges with stay open feature at 120 degrees. Hinges
include a concealed switch to automatically activate the interior incandescent light-
ing. Guaranteed for life, work flow door handles are mounted horizontally over
recess in door which limits protrusion from door face into aisleways. Doors have
seamless, polished metal corners.
Easily removable for cleaning, vinyl magnetic door gasket assures tight door seal.
Both the cabinet and door(s) are insulated with an average of 2" thick high density,
non-CFC, foamed in place polyurethane.
Refrigeration System
A top mounted, self-contained, balanced refrigeration system using R-134a
refrigerant is conveniently located behind the one piece louver assembly. It features
an easy to clean front facing condenser, thermostatic expansion valve, air-cooled
hermetic compressor, plenum effect blower coil, large, high humidity evaporator coil
located outside the food zone and a top mounted non-electric condensate
evaporator. Biased return air duct protects against introduction of warm kitchen air,
promoting even temperature maintenance and efficient operation. A 9' cord and
plug is provided. Standard operating temperature is 34 to 38°F.
Controller
The easy to use water resistant INTELA-TRAUL
®
microprocessor control system is
supplied standard. Unit is NAFEM Data Protocol communication (NDP) ready.
Optional hardware required to be NDP compliant. Third party software required for
network connection. It includes a 3-Digit LED Display, Fahrenheit or Celsius
Temperature Scale Display Capability, and an RS485 data port. In addition it
includes audio/visual alarms for: Hi/Lo Cabinet Temperature, Door Open, Clean
Condenser, Evaporator Coil and Discharge Line Sensor Failures, and Power Supply
Interruption.
Interior
Readily removable, interior-mounted, stainless steel guides for rack are provided for
protection. Maximum rack size with wheels inboard of frame is 27" wide by 29" deep
by 66" high. Racks supplied by others.
Warranties
Both a one year parts and labor warranty and a five year compressor warranty (self-
contained models only) are provided standard. An optional 2
nd
year extended parts
and labor warranty is also available. In addition the INTELA-TRAUL
®
control is
warranted by a two year parts and labor warranty.
Specifications
NOTES
NOTE: Figures in parentheses reflect metric equivalents.
1= Based on a 90 degree F ambient and 20 degree F evaporator.
2= For approximate remote weights deduct 40 lbs. from respective net or gross weight. For other information
on remote models, please refer to spec sheet 12-2.
Plan - R/ARI132LPUT
Elevation -
R/ARI132LPUT
Section - All Models
Plan - R/ARI232LPUT
Elevation -
R/ARI232LPUT
Plan - R/ARI332LPUT
Elevation -
R/ARI332LPUT
NOTE: Full load amps and plug style may vary depending
on electrical options chosen and condensing unit employed.
One Section Models Equipped With One
NEMA 5-15P Plug
Two & Three Section Models Equipped
With One NEMA 5-20P Plug