Installation/User's Manual
TEC_TM_009 REV. E03/31/2022Page 18 of 56 TRUE RESIDENTIAL
®
72 1/32"
1829mm
83 15/16"
2132mm
3 15/16"
100mm
25 25/32"
655mm
27 29/32"
709mm
30 15/32"
774mm
2 9/16"
65mm
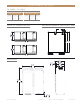
TR-36REF,36REF
R
INSTALLATION PLAN VIEWS
71 3/4" PROUD INSTALL
72 1/4" FLUSH INSTALL
84"
PROUD
INSTALL
84 1/4"
FLUSH
INSTALL
77"
2"
8" TYP
36 1/8"
TR-36REF, TR-36REF
R
25 25/32"
655mm
FLUSH INSTALL
23 25/32"
604mm
PROUD INSTALL
TR-36REF,36REF
R
TR-36REF / TR-36REF
FLUSH VS. PROUD INSTALL ROUGH OPENING & ELECTRICAL AREA
Flush Opening Dimensions Proud Opening Dimensions
Width Depth Height Width Depth Height
72¼" 25
25
⁄32" 8 4¼" 71¾" 23
25
⁄32" 84"
Dimensions may vary by ± 1/8" (3.2 mm)
PLAN VIEW










