Residential Single and Double Wall Oven Service Manual

APPENDIX REPLACING OVEN COMPONENTS
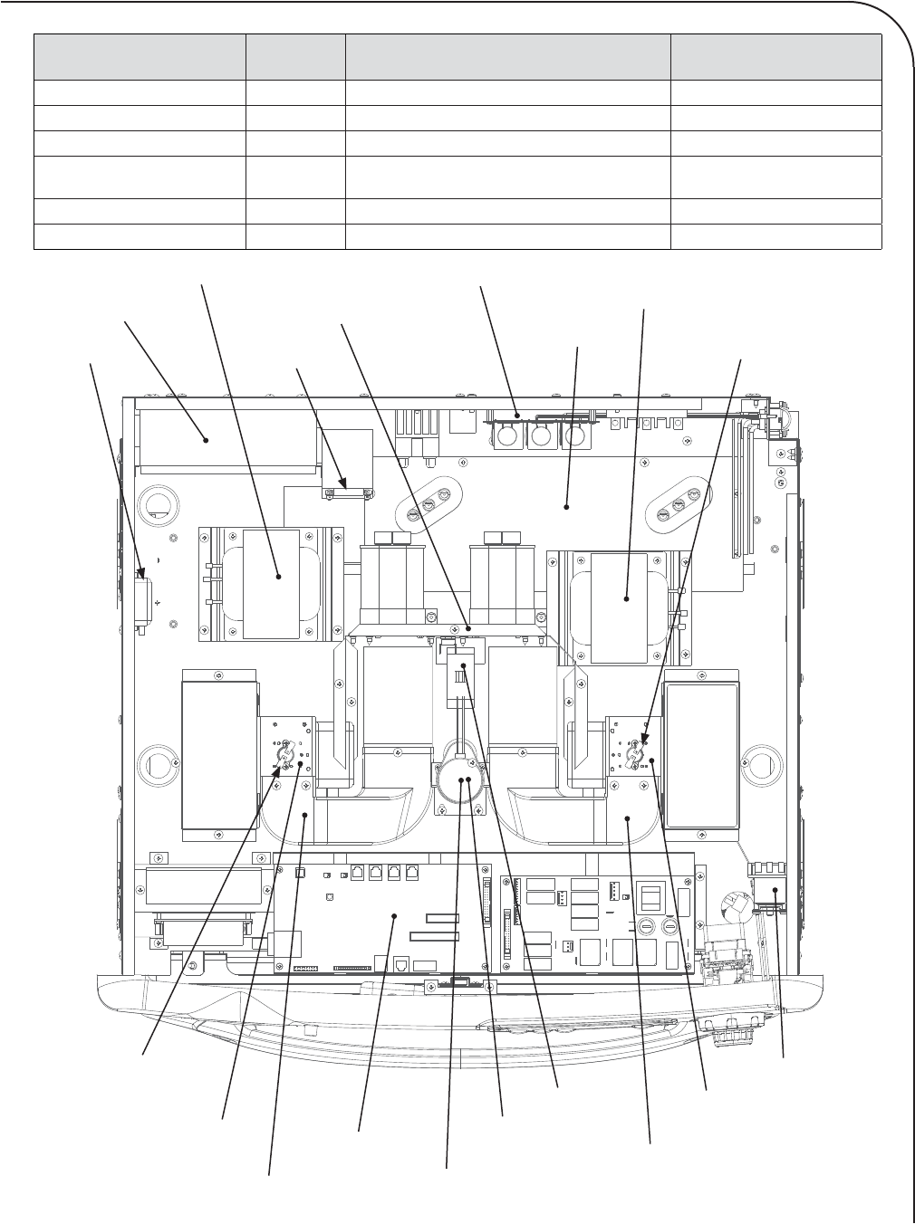
A.17
Item Description Item Part # Hardware Description Hardware Part Number(s)
Thermostat, 280F, Open on Rise 104167 Screw, #6 x 1/2, PPHD, DRL-PT, SS 101687 (x2)
Transformer, H.V. 104137 Screw, SH MTL, #8 x 1/2 Serrated PHTRH 101688 (x4)
Wire, H.V., Capacitor/Diode RWD-9435 None None
Wire, H.V., Capacitor/Trans-
former
RWD-9433 None None
Wire, H.V., Ground, Diode RWD-9436 None None
Wire, Upper Switch RWD-9432 None None
EMI Filter
Cooling Fan, EC, Upper
Transformer, H.V.
Snubber, Electrical
Mag Air Diverter Assembly, Gen 2
Relay/Power Assembly
Heater Cover Plate
Transformer, H.V.
Thermostat, 280F, Open on Rise
Thermostat, 280F,
Open on Rise
Magnetron
Magnetron
Controls Assembly, Gen 2
Duct, Mag Cooling, LHS
Duct, Mag Cooling, RHS
Stirrer Motor, Gear
Stirrer Motor, Hub
Blower, Dual
High Limit Switch
Figure A.9: Control Housing Detail, DWO Gen 2 and SWO










