USER MANUAL Loudspeaker Management System LMS-D24, LMS-D26, LMS-D6

user manual
TA-890
TA-890 user manual
Page 32
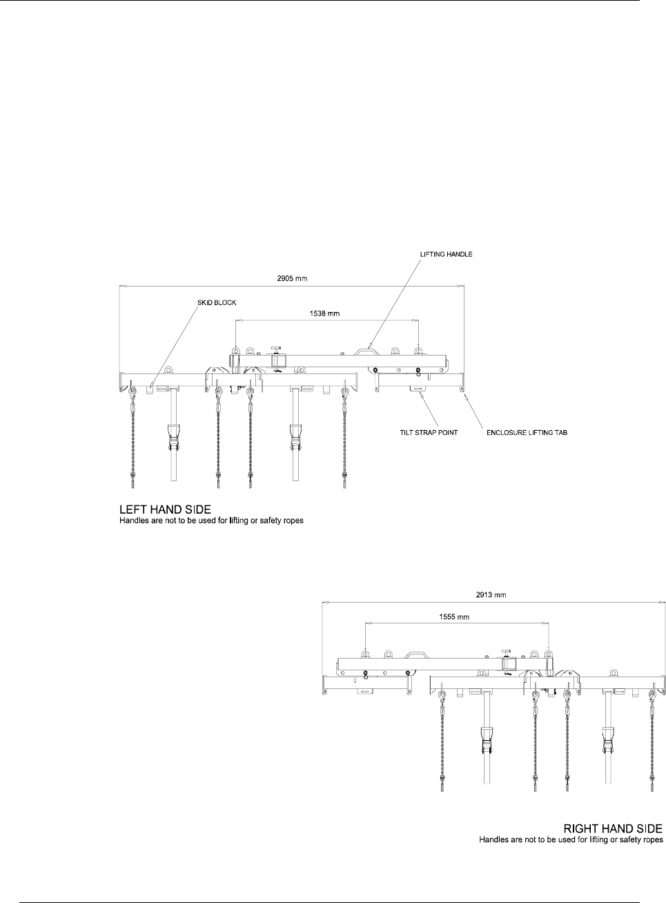
Three-wide hang using MB-890, EB-890, FB-890/2A and FB-890/1A
Consists of a FB-890/1A single bar and a FB-890/2A double bar, coupled with a left or right
hand side FB-890MB motherbeam and one MBE-890 left or right side extender beam. The
geometry of the system ensures that the optimum 25° horizontal angle is maintained
between columns. This configuration can be bridled from a single one-tonne point when
flying uip to three cabinets deep. When flying four or more cabinets deep up to a maximum
of six, two motors must be used.
The total net weight of this configuration is 110kg, including straps and chains.