Use and Care Manual

RECOMMENDED LOCATION OF ALARMS
• Locate the rst smoke alarm in the immediate area of the bedrooms. Try to protect the escape
route as the bedrooms are usually farthest from an exit. If more than one sleeping area exists,
locate additional smoke alarms in each sleeping area. If a hall is more than 40 feet (12 meters)
long, install a smoke alarm at each end.
• Locate
additional smoke alarms to protect any stairway as stairways act like chimneys for smoke
and heat.
• Locate at least one smoke alarm on every oor level.
• Locate a smoke alarm in any area where a smoker sleeps or where electrical appliances are
operated in sleeping areas.
• Smoke,
heat and other combustion products rise to the ceiling and spread horizontally. Mounting
the smoke alarm on the ceiling in the center of the room places it closest to all points in the room.
Ceiling mounting is preferred in ordinary residential construction. However, in mobile homes,
wall mounting on an inside partition is preferred to avoid the thermal barrier that may form at the
ceiling.
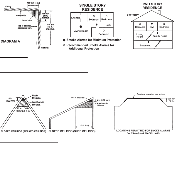
• When mounting smoke alarm on the ceiling, locate it a minimum of 4" (10cm) from a side wall
or corner (see Diagram A).
• When mounting smoke alarm on a wall, if local codes allow, use an inside wall with the top edge of
the smoke alarm a minimum of 4" (10cm) and a maximum of 12" (30.5cm) below the ceiling/wall
intersections (See Diagram A).
Page 3
Sloped Ceilings (Peaked Ceilings):
Smoke alarms or smoke detectors mounted on a peaked ceiling shall be located within 36 in. (914 mm)
horizontally of the peak, but not closer than 4 in. (102 mm) vertically to the peak.
Sloped Ceilings (Shed Ceilings):
Smoke alarms or smoke detectors mounted on a sloped ceiling having a rise greater than 1 ft. in 8 ft. (1
m in 8 m) horizontally shall be located within 36 in. (914 mm) of the high side of the ceiling, but not closer
than 4 in. (102 mm) from the adjoining wall surface.
Tray-Shaped Ceilings:
Smoke Alarms or smoke detectors shall be installed on the highest portion of the ceiling or on the sloped
portion of the ceiling within 12 in. (305 mm) vertically down from the highest point.
Mobile Home Installation:
For minimum protection, smoke alarms should be installed in compliance with H.U.D. Manufactured
Home Construction Safety Standards, Title 24 CFR, Section 3280.208 and Section 3282. For additional
protection, see Single Story Residence smoke alarm requirements/recommendations for Existing Homes
and New Construction Homes.
Note: For mobile homes built before 1978, install smoke alarms on inside walls between 4” and 12” from
the ceiling (older mobile homes have little or no insulation in the ceiling). This is especially important if
the ceiling is unusually hot or cold.
Install a smoke alarm inside each bedroom and in the hallway outside each separate sleeping area.
Existing Homes:
The NFPA requires a smoke alarm on every level and outside each sleeping area in existing construction.
An existing household with one level and one sleeping area is required to have one smoke alarm.
New Construction Homes and Manufactured Homes:
The NFPA requires AC-powered, interconnected smoke alarms to be installed inside each bedroom, outside
each bedroom area, and on every level of the home. They also require a minimum of two AC-powered,
interconnected smoke alarms in any new construction home.










