Use and Care Manual

• Install an alarm in every family living unit containing a fuel-burning appliance, replace, or
an attached garage.
• Alarms should be centrally located outside of each separate sleeping area in the immediate vi-
cinity of the bedrooms. Where bedrooms are separated and audibility of the alarm to occupants
within the bedroom area could be seriously impaired, more than one alarm may be needed.
• Protect the escape route, as the bedrooms are usually farthest from an exit. If more than
one sleeping area exists, locate additional alarms in each sleeping area. If a hall is more
than 40 feet (12 meters) long, install an alarm at each end of the hallway.
• Add additional alarms to protect any stairway, as stairways may act like chimneys for
smoke and heat.
• Locate at least one alarm on every oor level.
• Locate an alarm in any area where a smoker sleeps or where electrical appliances are
operated in sleeping areas.
• Smoke, heat and other combustion products rise to the ceiling and spread horizontally.
Mounting the alarm on the ceiling in the center of the room places it closest to all points in
the room. Ceiling mounting is preferred in ordinary residential construction. However, in
mobile homes, wall mounting on an inside partition is preferred to avoid the thermal barrier
that may form at the ceiling.
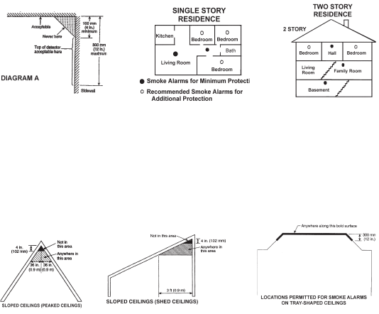
• When mounting the alarm on the ceiling, locate it a minimum of 4” (10cm) from a side wall
or corner (see Diagram A).
• When mounting the alarm on a wall, if local codes allow, use an inside wall with the top
edge of the smoke alarm a minimum of 4” (10cm) and a maximum of 12” (30.5cm) below
the ceiling/wall intersections (See Diagram A).
Existing Homes:
The NFPA requires smoke alarms or combination alarms on every level and outside each
sleeping area in existing construction. An existing household with one level and one sleeping
area is required to have one smoke alarm.
New Construction Homes and Manufactured Homes:
The NFPA requires AC-powered, interconnected smoke alarms to be installed inside each
bedroom, outside each bedroom area, and on every level of the home. They also require
a minimum of two AC-powered, interconnected smoke alarms or combination alarms in any
new construction home.
Sloped Ceilings (Peaked Ceilings):
Smoke alarms or combination alarms mounted on a peaked ceiling shall be located within
36 in. (914 mm) horizontally of the peak, but not closer than 4 in. (102 mm) vertically to the peak.
Sloped Ceilings (Shed Ceilings):
Smoke alarms or combination alarms mounted on a sloped ceiling having a rise greater than
1 ft. in 8 ft. (1 m in 8 m) horizontally shall be located within 36 in. (914 mm) of the high side of
the ceiling, but not closer than 4 in. (102 mm) from the adjoining wall surface.
Tray-Shaped Ceilings:
Smoke Alarms or combination alarms shall be installed on the highest portion of the ceiling
or on the sloped portion of the ceiling within 12 in. (305 mm) vertically down from the highest
point.
Page 4










