specification sheet

UNDER CABINET SPECIFICATIONS
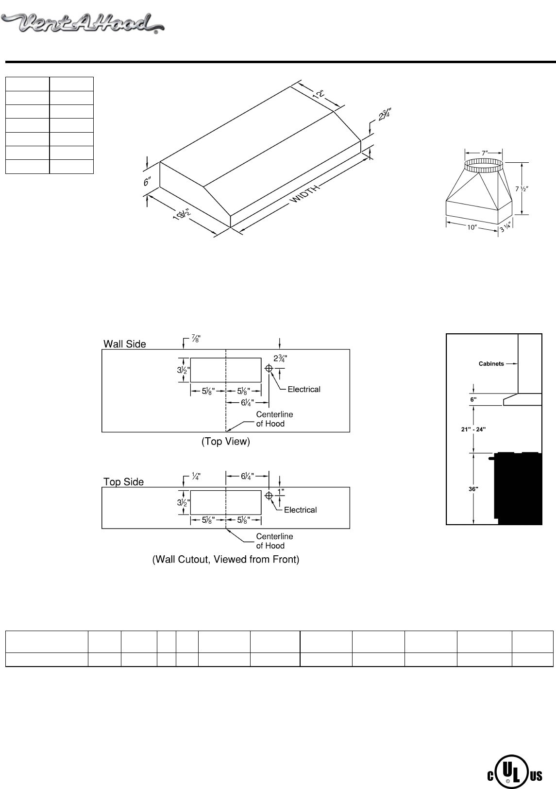
Model Number: PRH6-K30
Special Notes: Halogen lights. This model is not available with heat lamps. This model is available in black, biscuit, gunsmoke, stainless steel, and white.
No customizations.
WIDTH: 30"
DEPTH: 19 1/2"
HEIGHT: 6"
CFM: 250
SONES: 7.4
AMPS: 3.5
# LIGHTS: 2
REC. MOUNTING HEIGHT*
* Exceeding recommended
mounting height may compromise
performance.
The VP521 transition is
available
for top vent applications
at an additional charge.
CONNECTION DIAGRAM
ELECTRICAL/MECHANICAL SPECIFICATIONS FOR BLOWER UNIT
MODEL VOLTS AMPS+ HZ RPM CFM SP@0.0" EQUIV CFM$ CFM SP@0.1" CFM SP@0.2" CFM SP@0.3"
MIN. ROUND
DUCT SIZE
SONES#
K250 (Top Vent) 115 3.5 60 1550 250 375 223 220 190 7" (38 sq. in.) 7.4
+ This model is equipped with halogen lighting: (2 lights: 24" - 41", 3 lights: 42")
$ Because the Power Lung™ blower uses centrifugal filtration rather than conventional baffle or mesh filters, the Power Lung™ blower can
handle cooking equipment with higher cubic feet per minute (CFM) requirements and can deliver equivalent CFM much more efficiently than other filtration
systems. When comparing the Power Lung™ with other blower units made by other manufacturers, use the "Equivalent CFM".
# Ratings in accordance with the Standard Test Code by the Energy Systems Laboratory of the Texas Engineering Experiment Station.
Specifications Subject To Change Without Notice