Specifications
Manuals
Brands
Vulcan-Hart Manuals
Boiler
VL BOILER BASE SERIES
1
2
3
4
5
6
7
8
9
10
– 9 –
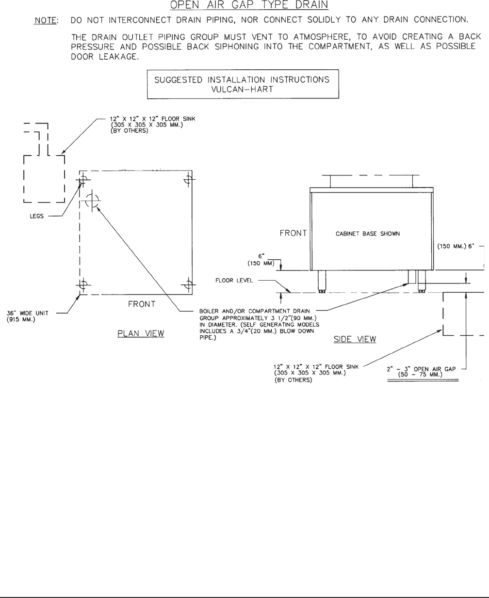
DRAIN REQUIREMENTS
The floor sink is not to be located under the steamer.
Fig. 4
1
...
...
7
8
9
10
11
...
...
16