F1 0003 1
Manuals
Brands
Water Creation Manuals
Plumbing
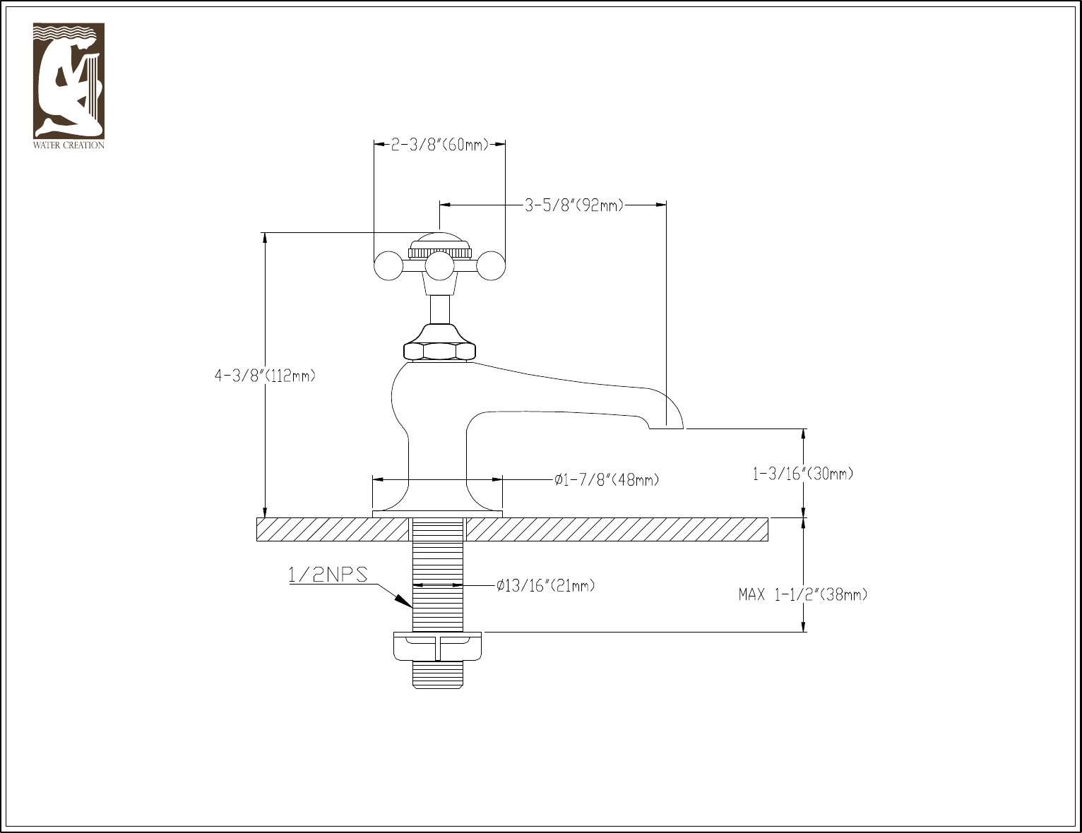
F1-0003-02-PL Water Creation F1-0003-02 Vintage Classic Basin Cocks Lavatory Faucet
1
MODEL: F1-0003
1
Summary of content (1 pages)
PAGE 1
MODEL: F1-0003