User Manual

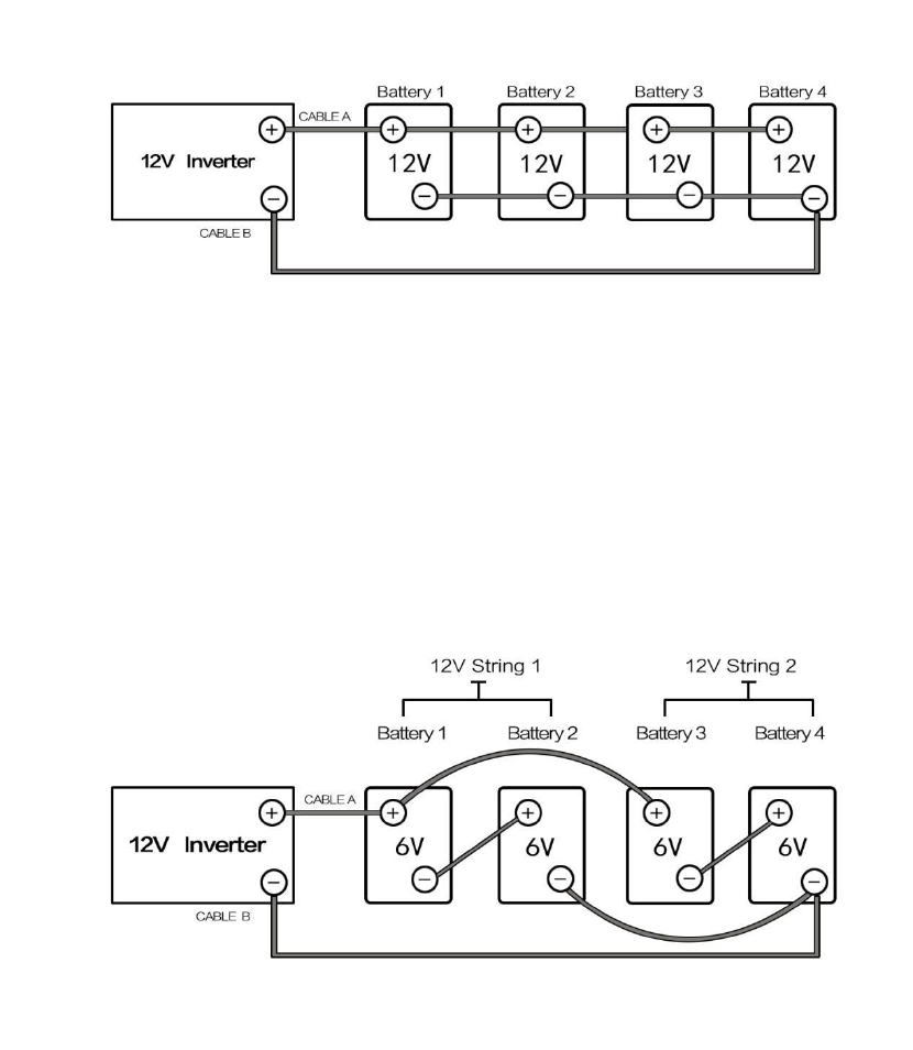
6.4.3Series Parallel Connection
The following chart shows a series- parallel connection consisting of four 6V,
200AH batteries to get a 12V, 400Ah battery bank. For string 1, two 6v,
200ah batteries are connected in series to get a 12v, 200Ah battery. Do the
same to have string 2. The 2 strings are connected in parallel to have
12v,400Ah bank.
7. Warranty
One year warranty that commences from the date of purchase, under the
following conditions:
• That all defects are attributable to material or production defects/errors and
not improper use (warranty is void if the unit is improperly used, improperly
installed or damaged through negligence)
• The warranty claim is made within the warranty period (proof of purchase
required)
• Any unit covered under warranty will be repaired or replaced at the discretion
of the distributor, after being assessed by the distributor and deemed a defect
covered by warranty
• Warranty does not cover parts such as external case, fuses, connectors,
input leads, etc.










