
10
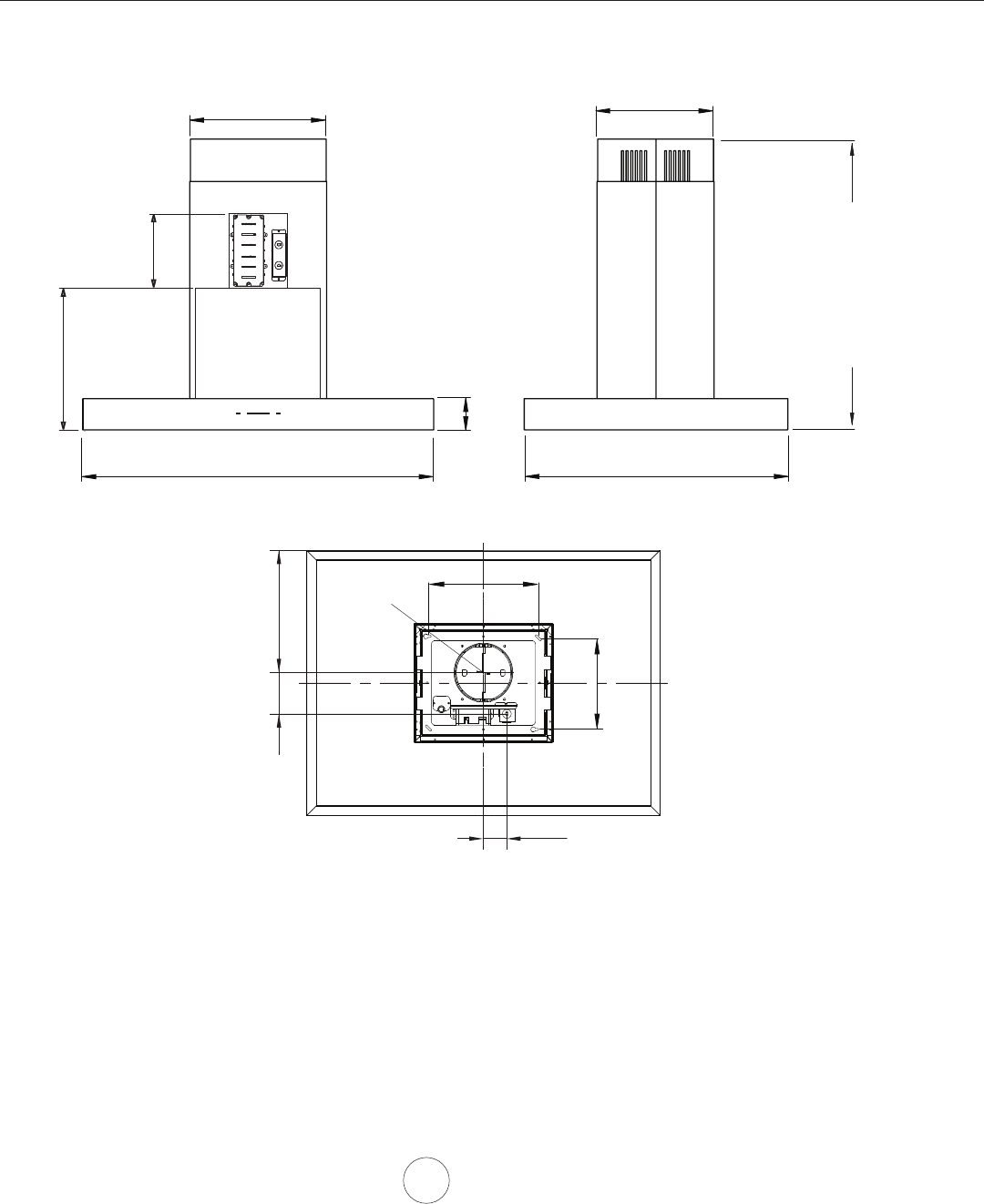
Installation – Spécications de la hotte ZRM
35 7/8”, 41 7/8”
14”
3”
26 7/8”
STANDARD
min. ducted - 28”
min. recirc. - 31”
max. - 39”
Z1C-01RM EXTENSION
min. ducted - 50 1/2”
min. recirc. - 50 1/2”
max. - 80”
12”
11 3/16”
9 11/16”
AC-IN
2
CL
3/8"
4
3/16
" 12
7/16
"
ø 6"
11"
9 7/16"
DEVANT CÔTÉ
DESSUS de la HOTTE